Home
Projekte
Mehrfamilienwohnhaus
Wasserkunst
Schaugarage
Einfamilienwohnhaus
Stadtvilla
Balkon
Bauhaus
Anbau
Dachgeschossausbau
Fachwerkhaussanierung
Hamburger Haus
1 ½ geschos. Bungalow
2 geschos. baubiol. Einfamilienwohnhaus
Fassadenbau
"schwebende Pappel"
Gartenbau
Sanierung Einfamilienwohnhaus
Gewerbehallenerweiterung
Hamburger Carport
Bauen in Tansania
Sanierung Einfamilienwohnhaus II
Hochebene Kindergarten
Projektentwicklungen
Ingenieursleistungen
Diverses
Lebenslauf
Presse
Links
Kontakt
Impressum
Projekte

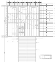
Fassadenbau

Energetische Sanierung einer Fassade im Bestand, Dämmung der Dachfläche mit Cellulose, Gestaltung der Fassade mit Metall und glasiertem Klinker.

Planungsstand: fertig gestellt























Top info@arcturez.com 05130 - 58 58 77